倉敷市の不動産|正直不動産 > (戸建(売買))地域から探す > 倉敷市 > 玉島黒崎新町戸建 > 物件詳細
和室8畳以上なら、広々としたテーブルなども置く事が出来ます。独立した洗面所のある物件です。新生活を始めるなら、この1,280万円の物件。フローリングは掃除が簡単です。ご家族との穏やかな時間は、何にもかえがたい幸せなものです。その大切な時間を、より快適な住環境で送りませんか。当社が不動産探しのサポートを致します。











(※元利均等方式 金利5.00%まで ※返済年数5~50年まで入力できます)
(※ボーナスは年2回で計算しています。1000万円まで入力できます)
(※物件購入時、その他諸費用が発生する場合がございます)
| 所在地 | 岡山県倉敷市玉島黒崎新町6-2 | ||
|---|---|---|---|
| 交通 | |||
| 間取り/詳細 |
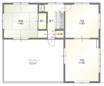
6DK/ DK 8.0帖 1室/洋室 10.0帖 1室/和室 8.0帖 1室/和室 6.0帖 1室/洋室 10.0帖 1室/洋室 8.0帖 1室/和室 8.0帖 1室 |
建物面積(坪数) | 145.18㎡(43.91坪) |
| 価格 | 1,280万円 | ||
| 駐車場/月額料金 | -/- | ||
| 土地の敷金/保証金 | -/- | 借地料/借地期間 | -/- |
| 土地権利 | 所有権 | 土地面積(坪数) | 376.10㎡(113.76坪) |
| 傾斜地部分面積 | - | 路地状敷地 | - |
| 私道負担面積/セットバック | -/無 | 高圧線下面積 | - |
| 地目/地勢 | 宅地/平坦 | 接道状況 | 一方(北 公道 10.0m) |
| 建ぺい率/容積率 | 60%/200% | 用途地域 | 準工業 |
| 都市計画 | 市街化区域 | 種別/構造 | 中古一戸建/鉄筋コンクリート |
| 階建 | 2階建 | 築年月(築年数) | 1981年 2月 (築44年) |
| 総区画数/販売区画数 | -/- | 向き | 南 |
| 現況 | 居住中 | その他の法令上の制限 | 景観法/宅地造成及び特定盛土等規制法/法22条区域 |
| 取引態様/引渡時期 | 仲介/相談 | 建築確認番号 | - |
| 物件番号 | 98900374 | 取引条件の有効期限 | 2025年12月18日 |
| 設備条件 |
|
||
| 備考 | 新倉敷駅周辺への引っ越しをお考えなら「玉島黒崎新町戸建」。376.1㎡(公簿)の土地面積を当社一押しの中古一戸建。かさばってスペースをとる衣類も倉庫に収納することができます。中古一戸建に備え付けの食器洗乾燥機をご利用いただけます。当社では数多くの不動産を取り扱っておりますので、お客様の希望する不動産を見つけ、よりよい生活を実現させます。ぜひご検討ください。 | ||
| 取扱会社 |
|
||
| QRコード |
このQRコードを読み取ることで、スマホでも物件情報を確認できます。 |
||
※地図上に表示される物件の位置は付近住所に所在することを表すものであり、実際の物件所在地とは異なる場合がございます。
玉島黒崎新町戸建に関するこだわり条件から探す